VSME
VSME

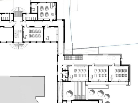
Volksschule Melk

Projekt: Volksschule Zubau Wettbewerb
Ort: A-3390 Melk
Planung: ab 2019 in ARGE mit Arch. Sonja Blab
Ausführung: 2021-2022
Auftraggeber: öffentlich
Nutzfläche: 2.000m²

Zurück
VSME VSME VSME VSME VSME VSME VSME VSME VSME VSME