AFB
AFB

AFB

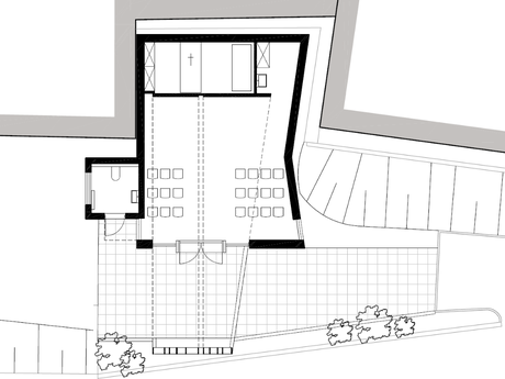
Projekt: Aufbahrungshalle 
Ort: A-3231 Sankt Margarethen
Planung: ab 2020 
Ausführung: 2021-2022
Auftraggeber: öffentlich
Nutzfläche: 70m²

Zurück
AFB AFB AFB AFB AFB AFB AFB AFB AFB AFB